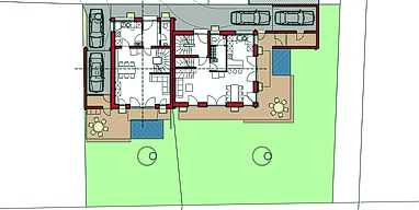
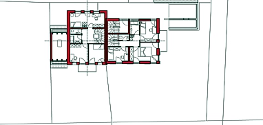
Im südlichen Salzburg planten wir ein Doppelhaus mit einem herrlichen Blick auf den
Untersberg.
Das Gebäude bildet den städtebaulichen Abschluss einer Wohnsiedlung aus den
1980er Jahren.
Knapp 300,00 qm Wohnfläche bieten Wohnraum für zwei Familien und ein Paar im
Dachgeschoss.
Hochwertige Materialien und der energieeffizienter Einsatz von Wärmepumpen
ermöglichen einen sehr geringen Wärmebedarf und damit eine wirtschaftliche Beheizung des Hauses.