Geänderte Anforderungen an die Arbeitsbedingungen und die kontinuierliche Ausweitung
des Seminarangebots der Akademie sorgten im Laufe der Zeit dafür, das die ursprünglich für
administrative Aufgaben vorgesehen Flächen nicht mehr ausreichten.
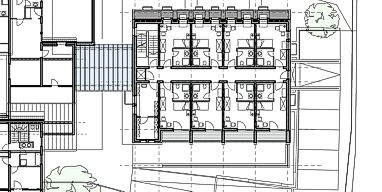
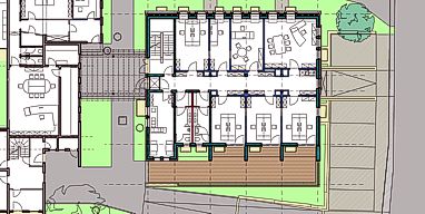
Daher entschloss man sich, für diese Aufgaben ein neues Verwaltungsgebäude
zu errichten, das neben dringend benötigten Lagerflächen auf 840,00 qm auch 8 zusätzliche
Zimmer für Dozenten bereit stellt.
Kubatur und Materialität entsprechen dabei als logische Fortschreibung
dem eigenständigen Charakter des Bestandes.
Im Sommer des Jahres 2015 wurde das neue Gebäude fertiggestellt.